UMAG – IDEALE WOHNUNG IN RUHIGER STRASSE NAHE MEER UND STADTZENTRUM


Grundlegende Informationen

  • Objekt-Kennnummeriro-1083
  • Anfangspreis209 000 €
  • Verkaufspreis199 000 € (1 499 366 kn)
  • Standort Umag (52470)
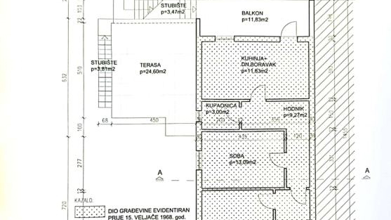
  • Fläche81,00 m2
  • Wohnungstyp3-Z
  • EnergieeffizienzklasseA
  • Anzahl der Zimmer4
  • Anzahl der Schlafzimmer3
  • Anzahl der Badezimmer1
  • Geschoss1
  • Anzahl der StockwerkeEinstöckig
  • Geschosse insgesamt2
  • GebäudeartWohngebäude
  • Renovierungsjahr2017
  • Anzahl der Parkplätze2

Wohnung 3-Z zu verkaufen, Umag, 199 000 €

UMAG – IDEALE WOHNUNG IN RUHIGER STRASSE NAHE MEER UND STADTZENTRUM

Wir präsentieren eine funktionale und gepflegte Wohnung im ersten Stock eines Einfamilienhauses, gelegen in einer ruhigen Straße direkt im Zentrum von Umag. Diese Immobilie verbindet komfortables Wohnen, die Nähe zu allen wichtigen Einrichtungen und einen praktischen Hofbereich, der sich in eine gemütliche Außenfläche für geselliges Beisammensein verwandeln lässt.

Die Wohnung hat eine Gesamtfläche von 81 m2 und besteht aus einem Flur, drei Zimmern, einer Küche mit Essbereich und einem Badezimmer. Die Innenräume sind hell, logisch angeordnet und leicht an verschiedene Einrichtungsstile anpassbar. Die Böden sind mit Keramikfliesen und Parkett ausgestattet, PVC-Fenster mit Rollläden und Insektenschutz sorgen für Komfort, und das isolierte Haus gewährleistet eine gute Energieeffizienz sowie Ruhe im Alltag.

Zur Immobilie gehört auch ein Hof von 72 m2 – ein großer Vorteil im Stadtzentrum. Dieser Bereich bietet die Möglichkeit, eine private Wohlfühloase zu gestalten, ideal für Grillabende, gesellige Treffen, einen Gartenbereich, eine Fertiggarage oder einen kleinen Freizeitplatz. Im Hof steht zudem ein gemeinsamer Parkplatz zur Verfügung.

Die Dokumentation ist vollständig und transparent: Eigentumsurkunde, Bescheinigungen, Legalisierungsbescheid, Aufteilungsunterlagen sowie Hofaufteilungsplan. Das Haus ist legalisiert, die Einheiten sind eingetragen, und die Energieklasse A bestätigt einen effizienten Energieverbrauch.

Die Lage zählt zu den größten Pluspunkten. Das Stadtzentrum ist nur 300 Meter entfernt, der Stadtstrand etwa 600 Meter — ideal sowohl für den Alltag als auch für den Urlaub. In unmittelbarer Nähe befinden sich Supermärkte, der Busbahnhof, eine Tankstelle, die Schule und das Gesundheitszentrum mit Notdienst — alles, was man für ein bequemes und organisiertes Leben braucht.

Diese Wohnung ist eine hervorragende Wahl für Familien, für einen ruhigen Sommeraufenthalt oder als sichere Investition im Herzen von Umag. Für weitere Informationen oder eine Besichtigung stehen wir Ihnen jederzeit zur Verfügung. Hier treffen Funktionalität, Tradition und eine erstklassige Lage aufeinander.

Sonstige Eigenschaften

  • Balkon
  • Fenster und Türen aus Kunststoff

Heizung

  • Gas
  • Sonstige feste Brennstoffe
  • Strom

Installationen

  • Strom
  • Wasser
  • Kanalisation

Dokumentation

  • Baugenehmigung
  • Beschluss über den ausgeführten Stand

Standort der Immobilie

Kontaktieren Sie diesen Agenten

Renato Gavrilović

Diese Website hinterlässt "Cookies" auf Ihrem Computer zum Zweck der Inhaltsnavigation und anonymisierten Nutzungsstatistiken. Durch die Nutzung dieser Website bestätigen Sie, dass Sie dem zustimmen.